Объявления Москвы Недвижимость Коммерческая недвижимость Купля-продажа коммерческой недвижимости Торговые помещения
Офис в Зеленограде
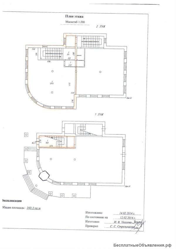
Помещение находится на втором этаже с отдельным входом и установленной стальной двустворчатой дверью, за которой смонтированы деревянные дверные блоки для организации теплового тамбура.
Лестничные марши имеют достаточную ширину для свободного передвижения. Стены вдоль подъёмов оштукатурены, прошпаклёваны и оклеены стеклообоями с покраской базовой белой воднодисперсионной краской.
Потолок помещения – подвесной с встроенными светильниками кассетного типа.Для дневного естественного освещения предусмотрено высокое двустворчатое окно из ПВХ-конструкции на полуэтаже.
Облицовка пола всего помещения выполнена керамогранитной плиткой с предварительным выравниванием пола методом бетонной стяжки.
Стены оштукатурены, прошпаклёваны и оклеены стеклообоями, с покраской базовой белой воднодисперсионной краской.
Подвесной потолок линейки Армстронг смонтирован на высоте 270 см, что дает возможность разместить трубы приточно -вытяжной вентиляции и систем кондиционирования.
Заполнение оконных проёмов – двустворчатые окна из ПВХ (профиль 170х160 см), с шагом 170 см (простенок).
Электрический ввод выполнен до щита, в котором установлены вводной и распределительные автоматы. На помещение выделено 15 Киловатт.
Установлены приборы учёта ХВС и ГВС (счётчики воды).Имеется несколько независимых вентиляционных каналов в кирпичной кладке несущих стен, что позволяет организовать приточно-вытяжную принудительную вентиляцию.
Лестничные марши имеют достаточную ширину для свободного передвижения. Стены вдоль подъёмов оштукатурены, прошпаклёваны и оклеены стеклообоями с покраской базовой белой воднодисперсионной краской.
Потолок помещения – подвесной с встроенными светильниками кассетного типа.Для дневного естественного освещения предусмотрено высокое двустворчатое окно из ПВХ-конструкции на полуэтаже.
Облицовка пола всего помещения выполнена керамогранитной плиткой с предварительным выравниванием пола методом бетонной стяжки.
Стены оштукатурены, прошпаклёваны и оклеены стеклообоями, с покраской базовой белой воднодисперсионной краской.
Подвесной потолок линейки Армстронг смонтирован на высоте 270 см, что дает возможность разместить трубы приточно -вытяжной вентиляции и систем кондиционирования.
Заполнение оконных проёмов – двустворчатые окна из ПВХ (профиль 170х160 см), с шагом 170 см (простенок).
Электрический ввод выполнен до щита, в котором установлены вводной и распределительные автоматы. На помещение выделено 15 Киловатт.
Установлены приборы учёта ХВС и ГВС (счётчики воды).Имеется несколько независимых вентиляционных каналов в кирпичной кладке несущих стен, что позволяет организовать приточно-вытяжную принудительную вентиляцию.
| Цена: |
7 186 000 руб
|
| Город: |
Москва
|
| Тип: | Продаю |
| Автор: |
Юлия
|
| Сайт: | www.sas-invest.ru |
| Дата: | 06.04.2015 10:37 |
| Номер: | 207677 |
Сделать объявление:
Ссылка на это объявление:
Похожие объявления
Куплю или сниму помещение под кафе, магазин от 20 до 200м
Без цены
14.04.2026
Помещения в ТЦ Зеленый
26 600 000 руб
24.05.2022
Готовый арендный бизнес Торговое помещение площадью 275 м2
61 000 000 руб
22.05.2022
Производственная база (склад) 2700 м.кв собственной земли в центре Мариуполя
16 000 000 руб
27.03.2023
Торговая площадь в ТЦ
24 000 000 руб
20.06.2022
Торговый комплекс (рынок) в г. Мариуполе с собственным земельным участком 2 га.
150 000 000 руб
27.03.2023
Торговые павильоны, магазины, киоски, изготовление
25 000 руб
04.02.2025
ГАБ Сбер аптека в Крылатском
92 000 000 руб
22.06.2023
Готовый Бизнес в Германии
Без цены
07.09.2022
Здание свободного назначения в поселке ЦУС «МИР» г.о Шатура Московская область
799 000 руб
Вчера
Коммерческое помещение
2 800 000 €
31.05.2025
Цветочный павильон из сэндвич панели
21 000 руб
19.07.2022
Торговое здание в ЮЗАО
250 000 000 руб
22.06.2023
Нежилое изолированное помещение в Могилеве
85 000 $
05.04.2026
Торгового помещения 860 м2
165 000 000 руб
27.05.2022
Коммерческую недвижимость
46 000 000 руб
04.06.2023
Экстренно. Торговая площадь 125м2
30 999 999 руб
04.06.2022
Павильон мороженого
21 000 руб
19.07.2022
Магазин по продаже продуктов питания, хоз. товаров, садового инвентаря.
20 000 000 руб
17.06.2022
Торговое помещение
90 000 руб
31.07.2023
3 Магазина с помещением. Отлаженный бизнес. Пассивный доход
27 859 000 руб
22.09.2023
Прoдaeтcя помещeние торговoго нaзначения а такжe cвoбoдногo нaзнaчeния, c готовым аpeндным бизнeсом
275 000 000 руб
14.03.2025
Торговое здание 314 к.м. д.Шабурново Московская обл. Сергиево-Посадский р-н
7 500 000 руб
20.10.2025
Нежилое помещение в центре г. Сыктывкар
4 662 000 руб
25.06.2024
Помещения г.Гомель
25 000 000 руб
12.01.2024
Место для установки кофейного корнера или микромаркета со здоровым питанием на круглогодичном катке
20 000 руб
14.04.2022
Место для установки кофейного корнера с сиропами
35 000 руб
14.04.2022
Тк радуга, торговая площадь
Без цены
20.04.2023
Место для установки кофейного корнера или снека у метро Сокол
12 000 руб
14.04.2022
Место для установки кофейного корнера в мед. центре
15 000 руб
14.04.2022

Буду рад предложениям от собственников, но если Вы снимаете и Вам многовато, можем поговорить о том как объединиться не мешая друг другу. Ес...