Объявления Москвы Недвижимость Коммерческая недвижимость Аренда коммерческой недвижимости Торговые помещения
Помещение магазина
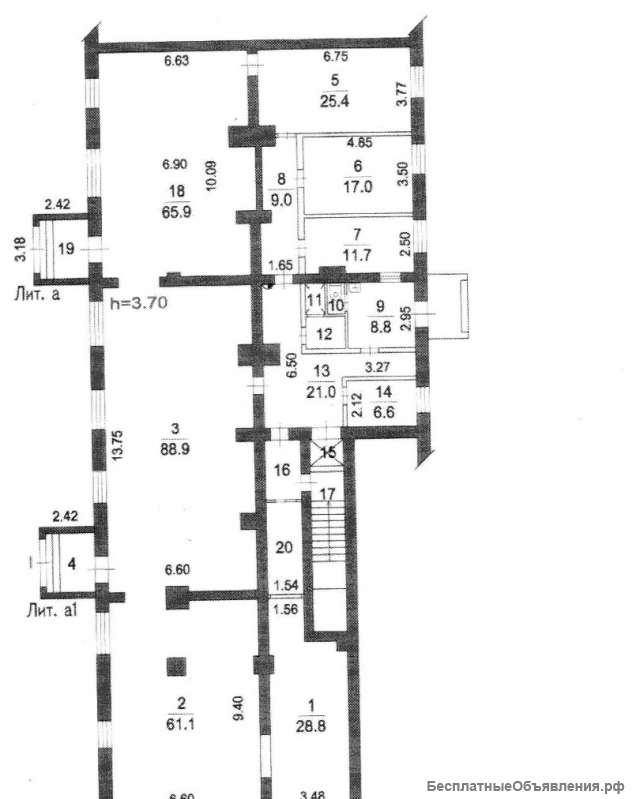
Сдается в аренду торговое помещение общей площадью 633 (из них 371 м2 - площадь 1 этажа и 262 м2 - площадь подвала), высота потолков: 1 этаж - 3.70 м, подвал - 2.60 м. Помещение находится на первом этаже жилого 5-этажного дома. 2 км от МКАД, 1 км от ст.м. Лермонтовский проспект, 5 минут до станции ЖД Ухтомская. В помещении имеется сан узел, электричество (35 кВт), водопровод, интернет, телефонная линия, отопление,
кондиционер. Возможно рассмотреть сдачу части помещения.
кондиционер. Возможно рассмотреть сдачу части помещения.
| Цена: |
510 000 руб
|
| Город: |
Люберцы
|
| Тип: | Сдаю |
| Автор: |
|
Регистрация с 08.06.2021
|
|
| Дата: | 05.04.2023 10:58 |
| Номер: | 2580579 |
Сделать объявление:
Ссылка на это объявление:
Местоположение
| Адрес: | Московская область, Люберцы, Октябрьский проспект, 25 |
| GPS: | 55.694013, 37.865004 |
Похожие объявления
Сдаются торговые площади в здании торгового цента
6 000 руб
19.03.2026
Торговая площадь г. Белоозерский
96 000 руб
16.12.2024
Аренда помещения Фрязино Торговый центр
30 000 руб
01.04.2024
Собственник +7 (916) 442-94-95 сдаст нежилое помещение ПСН площадью 99,2 м² 1-й этаж. Вход отдельн
233 000 руб
19.08.2024
Аренда от Собственника
525 000 руб
20.06.2024
Сниму или куплю помещение под кафе, магазин от 20 до 200м
Без цены
17.03.2026
Собственник +7 (968) 923-14-94 сдаст нежилое помещение площадью 70 м. кв. в г. Пушкино
135 000 руб
18.10.2024
Аренда торгового помещения
50 000 руб
09.02.2024
Площадь для торговли продовольственных товаров
17 732 руб
16.12.2024
Сдается в аренду торговое помещение 220 м2
570 000 руб
31.10.2024
Сдам помещение 90 кв.м.
90 000 руб
01.10.2024
Торгово-развлекательный центр "ГОРКИ" площади в аренду
800 руб
28.02.2024
Аренда ларька QBIK 2000 STANDART
12 000 руб
11.02.2025
Сдам площадь под торговлю
13 000 руб
01.10.2024
Аренда кафе на фудкорте
5 900 руб
09.01.2025
Торговое помещение в ТРЦ
2 660 руб
25.02.2026
Сдам торговое помещение 90 кв.м.
90 000 руб
01.10.2024
Оборудованная аптека 38 м2 в капитальном здании. Свой вход, подвал
Без цены
22.06.2024
Торговый отдельно стоящий торговый павильон
50 000 руб
16.12.2024
Аренда торговой площади 1 м.кв. под банкомат, вендинг
7 500 руб
13.10.2024
Аренда магазина с отдельным входом
3 333 руб
15.12.2025
Сдам в аренду торговое помещение площадью 900 кв.м.
500 000 руб
15.06.2024
Сдам в аренду торговое помещение 906 кв.м.
543 600 руб
07.08.2024
Аренда земли под рекламму
3 000 руб
01.10.2024
Аренда в торговом центре в г. Домодедово
2 000 руб
28.02.2024
Сдам помещение 257 м2
350 000 руб
10.12.2025
Сдача торгового места в аренду
60 000 руб
10.01.2025
Сдается помещение свободного назначения
8 000 руб
16.09.2024
Аренда ресторана с мебелью
2 615 руб
06.02.2025
Аренда от собственника в центре Москвы
50 000 руб
14.05.2025

Сдаются торговые площади на первом этаже здания торгового центра с отдельным входом с фасадной части площадью 30, 40, 50 кв.м. Расположены ...