Пункт коммерческого учета электроэнергии .
Пункты коммерческого учета электроэнергии предназначены для организации коммерческого или технического учета активной и реактивной электрической энергии в распределительных сетях трехфазного переменного тока напряжением 10(6) кВ, номинальным током до 630А, частотой 50 Гц. ПКУ устанавливается на границе раздела балансной принадлежности на существующую опору ВЛ, что не требует дополнительного землеотвода и капитальных сооружений.
Сбор информации по показаниям счетчика электроэнергии возможно осуществлять в двух режимах:
местный -(визуальный съем показаний со счетчика),
дистанционный- (передача данных на диспетчерский пункт с использованием проводных и беспроводных каналов связи).
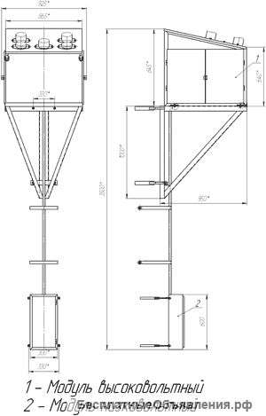
Конструктивно пункт коммерческого учета состоит из модуля высоковольтного измерительного (ВМ), модуля низковольтного (НМ) и жгута соединительных проводов.
К устройству прилагается усовершенствованный монтажный комплект для установки модулей на опору ЛЭП. Комплект включает металлическую платформу, на которую при помощи болтовых соединений крепится ПКУ, а также компактную опорную раму складного исполнения, что значительно облегчает транспортировку и монтаж изделия на объекте.
Высоковольтный модуль представляет собой металлический корпус, в крышу которого вмонтированы проходные изоляторы (ИПУ) для подключения главных цепей.
В зависимости от схемы измерения предусмотрено три варианта исполнения ВМ:
схема с тремя трансформаторами тока и тремя трансформаторами напряжения (3ТТ+3ТН);
схема с двумя трансформаторами тока и двумя трансформаторами напряжения (2ТТ+2ТН);
схема с двумя трансформаторами тока и тремя трансформаторами напряжения (2ТТ+3ТН).
Наличие дверей с двух сторон корпуса модуля предусматривает возможность оперативного осмотра, ремонта и демонтажа основного оборудования при отсутствии напряжения на воздушной линии электропередач.
Низковольтный модуль представляет собой металлический корпус навесного исполнения. Модуль оборудован уплотненной наружной дверью - для предотвращения несанкционированного доступа внутрь шкафа, а также внутренней фальш – панелью, оснащенной окнами для наблюдения показаний счетчика.
Все металлоконструкции подвергаются окрашиванию методом порошкового напыления. Готовое изделие имеет лакокрасочное покрытие толщиной до 150 мкр, что обеспечивает безупречный внешний вид и значительно увеличивает срок эксплуатации.
Для защиты оборудования при коммутационных и атмосферных перенапряжениях используются ограничители перенапряжения ОПН, устанавливаемые на отдельной траверсе. Электрическая связь между низковольтным и высоковольтным модулями выполняется жгутом соединительных проводов, проложенным в металлорукаве.
т./ф.4922-305368 ;8-903-6471471
Сбор информации по показаниям счетчика электроэнергии возможно осуществлять в двух режимах:
местный -(визуальный съем показаний со счетчика),
дистанционный- (передача данных на диспетчерский пункт с использованием проводных и беспроводных каналов связи).
Конструктивно пункт коммерческого учета состоит из модуля высоковольтного измерительного (ВМ), модуля низковольтного (НМ) и жгута соединительных проводов.
К устройству прилагается усовершенствованный монтажный комплект для установки модулей на опору ЛЭП. Комплект включает металлическую платформу, на которую при помощи болтовых соединений крепится ПКУ, а также компактную опорную раму складного исполнения, что значительно облегчает транспортировку и монтаж изделия на объекте.
Высоковольтный модуль представляет собой металлический корпус, в крышу которого вмонтированы проходные изоляторы (ИПУ) для подключения главных цепей.
В зависимости от схемы измерения предусмотрено три варианта исполнения ВМ:
схема с тремя трансформаторами тока и тремя трансформаторами напряжения (3ТТ+3ТН);
схема с двумя трансформаторами тока и двумя трансформаторами напряжения (2ТТ+2ТН);
схема с двумя трансформаторами тока и тремя трансформаторами напряжения (2ТТ+3ТН).
Наличие дверей с двух сторон корпуса модуля предусматривает возможность оперативного осмотра, ремонта и демонтажа основного оборудования при отсутствии напряжения на воздушной линии электропередач.
Низковольтный модуль представляет собой металлический корпус навесного исполнения. Модуль оборудован уплотненной наружной дверью - для предотвращения несанкционированного доступа внутрь шкафа, а также внутренней фальш – панелью, оснащенной окнами для наблюдения показаний счетчика.
Все металлоконструкции подвергаются окрашиванию методом порошкового напыления. Готовое изделие имеет лакокрасочное покрытие толщиной до 150 мкр, что обеспечивает безупречный внешний вид и значительно увеличивает срок эксплуатации.
Для защиты оборудования при коммутационных и атмосферных перенапряжениях используются ограничители перенапряжения ОПН, устанавливаемые на отдельной траверсе. Электрическая связь между низковольтным и высоковольтным модулями выполняется жгутом соединительных проводов, проложенным в металлорукаве.
т./ф.4922-305368 ;8-903-6471471
| Цена: |
170 000 руб
|
| Город: |
Москва
|
| Тип: | Продаю |
| Автор: |
|
Регистрация с 19.04.2014
|
|
| Сайт: | www.elektroshit.vlar.ru |
| Дата: | 10.02.2015 11:32 |
| Номер: | 118914 |
Сделать объявление:
Ссылка на это объявление:
Похожие объявления
ТВК-75И Трансформатор контактной сварки
134 700 руб
Сегодня 14:38
Горелка АГНИ-17МУ для стыковки с установками УДГУ, Транс-ТИГ
20 500 руб
Сегодня 14:39
РКС-502 Регулятор контактной сварки
109 650 руб
Сегодня 14:38
Линия полного цикла на 5 тонн в сутки (1 500 тонн в год) активированного угля из древесины
148 000 000 руб
Сегодня 12:49
Сварка оптоволокна и монтаж оптического кросса
1 600 руб
Сегодня 14:58
Горелка АГНИ-25 для стыковки с установками Транс-ТИГ
Без цены
Сегодня 14:39
РКМ-811М Регулятор контактной сварки
52 700 руб
Сегодня 14:38
АБЗ LyRoad BAP1500-6 (120 тонн/час, смеситель 1500 кг, 6 фракций)
66 500 000 руб
Сегодня 12:49
Линия по производству гашеной извести 200 тонн в сутки
195 000 000 руб
Сегодня 12:49
КТ-07 Контактор тиристорный
38 000 руб
Сегодня 14:38
РКМ-511M Регулятор контактной сварки
50 800 руб
Сегодня 14:38
Регуляторы контактной сварки РКМ-511М, РКМ-811М, РКМ-812М
Без цены
Сегодня 14:38
РКМ-1501M Регулятор контактной сварки
57 800 руб
Сегодня 14:39
КТ-12-1 Контактор тиристорный
77 000 руб
Сегодня 14:38
Установка аргоно-дуговой сварки Транс ТИГ-500 (УДГУ-501 AC/DC)
324 137 руб
Сегодня 14:39
ПВР-402М Плазмотрон
37 800 руб
Сегодня 14:39
Линия по пр-ву минерального порошка (МП) 20-30 т/ч на базе двух мельниц MTW-138
54 500 000 руб
Сегодня 12:49
Регулятор контактной сварки РКС-810М
89 500 руб
Сегодня 14:39
Горелка АГНИ-12МУ для стыковки с установками УДГУ-251
15 380 руб
Сегодня 14:39
Линия по производству автоклавных газобетонных блоков (AAC) на 650-700 м3 в сутки
275 000 000 руб
Сегодня 12:49
Линия активации угля 2,5 тонн в сутки (750 тонн в год) из отсева березового угля
49 500 000 руб
Сегодня 12:49
ПВР-412М Плазмотрон
39 800 руб
Сегодня 14:39
Регулятор контактной сварки РКС-801М
48 800 руб
Сегодня 14:40
Линия по пр-ву минерального порошка (МП) 20-30 т/ч на базе шаровых мельниц
73 000 000 руб
Сегодня 12:49
КТ-11-1 Контактор тиристорный
49 000 руб
Сегодня 14:38
Линия по пр-ву минерального порошка (МП) 25-35 т/ч на базе вертикальной валковой мельницы LM1300K
92 000 000 руб
Сегодня 12:49
Электротехника, пневматика, гидравлика из наличия и под заказ
700 руб
Сегодня 13:44
Электротехника и электроника по каталогу
700 руб
Сегодня 13:44
Микроэлектроника по каталогу. Минимальные цены.Со склада и под заказ.
500 руб
Сегодня 13:44
Каталог Allen Bradley из наличия и под заказ. Официальные поставки.
500 руб
Сегодня 13:44

Трансформатор ТВК-75И (Индуктор) предназначен в качестве источника тока для машин контактной сварки (точечной, шовной, стыковой, рельефной),...