Объявления Москвы Недвижимость Коммерческая недвижимость Купля-продажа коммерческой недвижимости Торговые помещения
Торговые помещения в Зеленограде
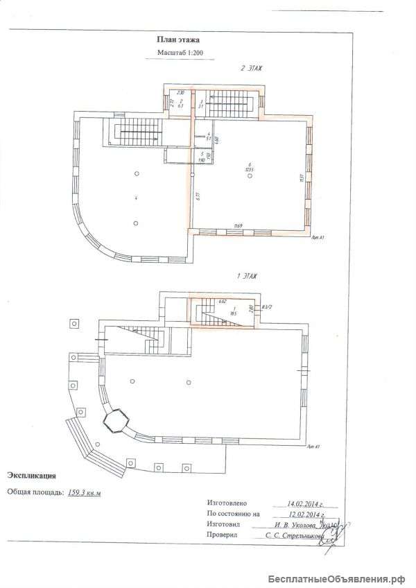
Помещение находится на втором этаже с отдельным входом и установленной стальной двустворчатой дверью, за которой смонтированы деревянные дверные блоки для организации теплового тамбура.
Лестничные марши имеют достаточную ширину для свободного передвижения. Стены вдоль подъёмов оштукатурены, прошпаклёваны и оклеены стеклообоями с покраской базовой белой воднодисперсионной краской. Потолок помещения – подвесной с встроенными светильниками кассетного типа. Для дневного естественного освещения предусмотрено высокое двустворчатое окно из ПВХ-конструкции на полуэтаже.
Помещение состоит из:
- зала свободной планировки (без перегородок);
- малого холла;
- санузла с установленным умывальником и туалетной кабиной.
Облицовка пола всего помещения выполнена керамогранитной плиткой с предварительным выравниванием пола методом бетонной стяжки. Стены оштукатурены, прошпаклёваны и оклеены стеклообоями, с покраской базовой белой воднодисперсионной краской. Подвесной потолок линейки Армстронг смонтирован на высоте 270 см, что дает возможность разместить трубы приточно -вытяжной вентиляции и систем кондиционирования. Заполнение оконных проёмов – двустворчатые окна из ПВХ (профиль 170х160 см), с шагом 170 см (простенок)
Электрический ввод выполнен до щита, в котором установлены вводной и распределительные автоматы. На помещение выделено 15 Киловатт.
Установлены приборы учёта ХВС и ГВС (счётчики воды).
Имеется несколько независимых вентиляционных каналов в кирпичной кладке несущих стен, что позволяет организовать приточно-вытяжную принудительную вентиляцию.
Лестничные марши имеют достаточную ширину для свободного передвижения. Стены вдоль подъёмов оштукатурены, прошпаклёваны и оклеены стеклообоями с покраской базовой белой воднодисперсионной краской. Потолок помещения – подвесной с встроенными светильниками кассетного типа. Для дневного естественного освещения предусмотрено высокое двустворчатое окно из ПВХ-конструкции на полуэтаже.
Помещение состоит из:
- зала свободной планировки (без перегородок);
- малого холла;
- санузла с установленным умывальником и туалетной кабиной.
Облицовка пола всего помещения выполнена керамогранитной плиткой с предварительным выравниванием пола методом бетонной стяжки. Стены оштукатурены, прошпаклёваны и оклеены стеклообоями, с покраской базовой белой воднодисперсионной краской. Подвесной потолок линейки Армстронг смонтирован на высоте 270 см, что дает возможность разместить трубы приточно -вытяжной вентиляции и систем кондиционирования. Заполнение оконных проёмов – двустворчатые окна из ПВХ (профиль 170х160 см), с шагом 170 см (простенок)
Электрический ввод выполнен до щита, в котором установлены вводной и распределительные автоматы. На помещение выделено 15 Киловатт.
Установлены приборы учёта ХВС и ГВС (счётчики воды).
Имеется несколько независимых вентиляционных каналов в кирпичной кладке несущих стен, что позволяет организовать приточно-вытяжную принудительную вентиляцию.
| Цена: |
7 213 000 руб
|
| Город: |
Москва
|
| Тип: | Продаю |
| Автор: |
Юлия
|
| Сайт: | www.sas-invest.ru |
| Дата: | 06.04.2015 10:39 |
| Номер: | 207667 |
Сделать объявление:
Ссылка на это объявление:
Похожие объявления
Торговое помещение
90 000 руб
31.07.2023
Киоск под Барнаулом
350 000 руб
18.05.2023
ГАБ Сбер аптека в Крылатском
92 000 000 руб
22.06.2023
Нежилое изолированное помещение в Могилеве
85 000 $
05.04.2026
Торговые павильоны, магазины, киоски, изготовление
25 000 руб
04.02.2025
Помещения в ТЦ Зеленый
26 600 000 руб
24.05.2022
Торговое помещение в городе Змеиногорске
650 000 руб
18.05.2023
Куплю или сниму помещение под кафе, магазин от 20 до 200м
Без цены
14.04.2026
Готовый Бизнес в Германии
Без цены
07.09.2022
Производственная база (склад) 2700 м.кв собственной земли в центре Мариуполя
16 000 000 руб
27.03.2023
Коммерческую недвижимость
46 000 000 руб
04.06.2023
Экстренно. Торговая площадь 125м2
30 999 999 руб
04.06.2022
3 Магазина с помещением. Отлаженный бизнес. Пассивный доход
27 859 000 руб
22.09.2023
Торгового помещения 860 м2
165 000 000 руб
27.05.2022
Коммерческое помещение
2 800 000 €
31.05.2025
Готовый арендный бизнес Торговое помещение площадью 275 м2
61 000 000 руб
22.05.2022
Магазина
3 250 000 руб
08.02.2023
Магазин по продаже продуктов питания, хоз. товаров, садового инвентаря.
20 000 000 руб
17.06.2022
Торговый комплекс (рынок) в г. Мариуполе с собственным земельным участком 2 га.
150 000 000 руб
27.03.2023
Цветочный павильон из сэндвич панели
21 000 руб
19.07.2022
Отдельно стоящий магазин 240 м.кв в центре Мариуполя
5 860 000 руб
27.03.2023
Магазин на Белорусской
55 000 000 руб
04.06.2022
Павильон мороженого
21 000 руб
19.07.2022
Торговое здание 314 к.м. д.Шабурново Московская обл. Сергиево-Посадский р-н
7 500 000 руб
20.10.2025
Торговое здание в ЮЗАО
250 000 000 руб
22.06.2023
Место для установки кофейного корнера с сиропами
35 000 руб
14.04.2022
Тк радуга, торговая площадь
Без цены
20.04.2023
Место для установки кофейного корнера в мед. центре
15 000 руб
14.04.2022
Место для установки кофейного корнера или снека у метро Сокол
12 000 руб
14.04.2022
Место в аренду для установки кофейного корнера в БЦ
30 000 руб
14.04.2022

Срочно! Продается торговый павильон 36м2 состоит из 3 секций,подробности по телефону, торг.